Search the whole station

Accessories: Bio electric scooter vehicle battery

Ribbon Blender

The ribbon mixer is a type of equipment that achieves efficient mixing of materials through the three-dimensional convective movement of inner and outer helical ribbons, specifically designed for processing high-viscosity, sticky, or cohesive materials.
  • weight180-850kg
  • Voltage220V/380V
  • Power1.5-7.5kw
  • Capacity200-2000L
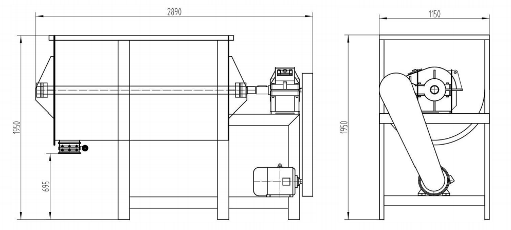
  • Barrel Dimensions1200×655×730(according to model)
  • size2050mm×780mm×1430mm(according to model)

Ribbon Blender: Comprehensive Guide for Industrial Applications

Ribbon blenders are essential mixing equipment widely used in chemical, food, pharmaceutical, and construction industries. They specialize in blending powdered and granular materials, featuring simple structures, uniform mixing effects, and easy operation. Particularly, they excel at handling high-viscosity and caking-prone materials.

Ribbon Blender(images 2)
Ribbon Blender(images 3)

1. Working Principle of Ribbon Blenders

The core working principle relies on two or more interlocking ribbons rotating inside the mixing drum. Through mechanical stirring, shearing, and pushing, different materials achieve full and uniform mixing. The specific process is as follows:

  1. Feeding: Materials enter the blender’s drum through the feed inlet.
  2. Mixing Process: Driven by a motor, the ribbons rotate continuously, pushing materials to circulate inside the drum for thorough mixing.
  3. Discharging: After mixing, materials are discharged through the discharge outlet. The blender’s design ensures no material stratification or unevenness.

The key component is the ribbon itself. Its relative motion generates strong shearing and friction forces, promoting full contact between material molecules to guarantee mixing quality.

Ribbon Blender(images 4)
Ribbon Blender(images 5)
Ribbon Blender(images 6)

2. Main Application Fields

Ribbon blenders are valued for their efficient mixing performance, making them indispensable in processes requiring uniform blending of powders, granules, and viscous materials. Their main application areas include:

  • Chemical Industry:Blending fertilizers, coatings, pigments, catalysts, and other chemical raw materials, suitable for handling diverse chemical substances.
  • Food Industry:Mixing feed, flour, sugar, seasonings, and other food ingredients to ensure product uniformity and quality.
  • Pharmaceutical Industry:Blending Chinese herbal medicines and chemical drugs to ensure even distribution of pharmaceutical raw materials and enhance efficacy.
  • Construction Materials Industry:Stirring fly ash and other construction materials to maintain stability in the production process.
  • Other Industries:Mixing plastic particles, rubber compounds, metal powders, and various other materials.
Ribbon Blender(images 7)
Ribbon Blender(images 8)

3. Technical Advantages

Ribbon blenders offer multiple technical advantages, making them ideal mixing equipment across industries:

  1. High Mixing Uniformity:Ensures consistent material blending, meeting the strict requirements of high-precision industrial production.
  2. Strong Adaptability:Suitable for mixing various materials, including powders, granules, particle-liquid mixtures, and viscous materials—especially effective for high-viscosity substances.
  3. Compact Structure, Small Footprint:Simple and compact design saves floor space, perfect for small enterprises or production environments with limited space.
  4. Easy Operation & Maintenance:User-friendly operation and simple maintenance. Regular checks on the mixing shaft and motor ensure long-term stable operation.
  5. Energy Efficiency & High Productivity:Designed for energy saving with low power consumption. While improving production efficiency, it reduces operating costs.
Ribbon Blender(images 9)
Ribbon Blender(images 10)

4. Models & Configurations

Ribbon blenders come in different models and configurations to match material types, production requirements, and application scenarios. The following table lists common specifications:

ModelDimensions (mm)PowerWeight (kg)VoltageCapacityDrum Size (mm)
1001540×620×11001.5kw180220V200L500×750×540
2001860×670×13003kw250220V/380V400L1000×550×630
3002050×780×14303kw360380V600L1200×655×730
5002820×980×19705.5kw480380V1000L860×1490×1000
10002880×1200×22007.5kw850380V2000L1900×1050×1200

5. Selection Guide

When selecting a ribbon blender, consider the following key factors:

  1. Material Characteristics:Particle size, humidity, and viscosity of materials affect blender choice. For high-viscosity or hard-to-mix materials, select a specialized ribbon blender.
  2. Production Capacity:Choose the appropriate model based on production scale and daily material processing volume. Equipment capacity is usually evaluated by hourly throughput.
  3. Power Requirements:Select a motor with suitable power according to material properties and blender load to ensure efficient operation.
  4. Installation Space:Consider the space available for equipment installation. Larger-capacity models require more space for installation and operation.
  5. Maintenance Needs:Evaluate maintenance cycles and convenience. Choosing an easy-to-maintain blender reduces downtime and repair costs.
Ribbon Blender(images 11)
Ribbon Blender(images 12)
Ribbon Blender(images 13)

6. Common Issues & Troubleshooting

  1. Uneven Mixing:May result from low equipment speed or improper material volume (too much or too little). Adjust the speed or adjust the amount of material.
  2. Equipment Overheating:Long-term high-load operation can cause overheating. Check the motor load and clean the equipment regularly to ensure normal operation.
  3. Material Blockage:High-viscosity materials may cause blockages. Clean the equipment regularly and use appropriate material handling methods.

7. Tips to Extend Service Life

Avoid Overloading:Do not operate the blender with an excessive material load, as this can damage components and reduce service life.

Regular Inspection & Maintenance:Periodically check key components such as the motor, ribbons, and transmission parts. Clean the inside of the equipment promptly to avoid material buildup.

This website uses cookies to improve your browsing experience. By continuing to use this site, you accept the use of our cookies. Data collected from this website is processed and stored in the United States.

Got it !